Nuestros Productos
VELAS
El Edificio Velas es un edificio diseñado con una mirada integral del espacio y la funcionalidad, pensando en la privacidad y exclusividad de una casa en altura.
Inspirados en el ambiente náutico, conocido por su ímpetu de una vida libre, y sus velas blancas que transmiten paz, tranquilidad y un sentido de exploración.
Su fachada contemporánea apunta a una arquitectura de estilo moderno sin perder la esencia del movimiento orgánico semejante al curso del mar, con un atractivo visual que tiene que ver con la desnudez de su estructura y sus materiales.
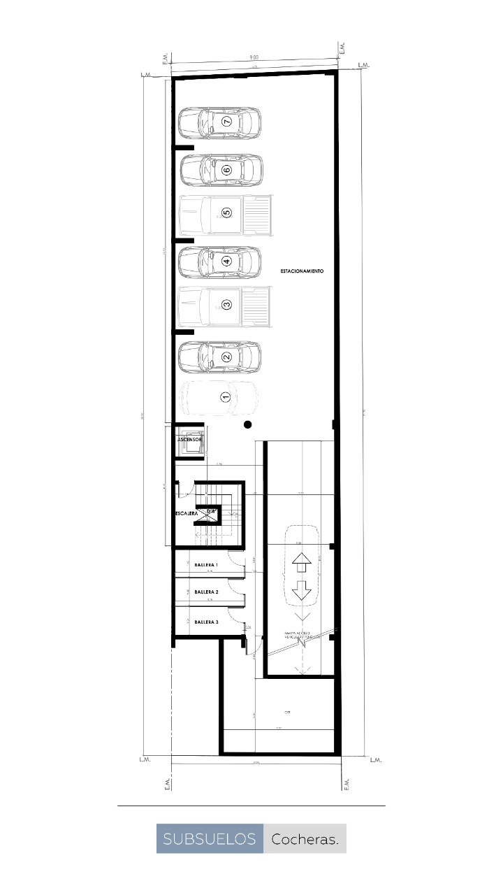
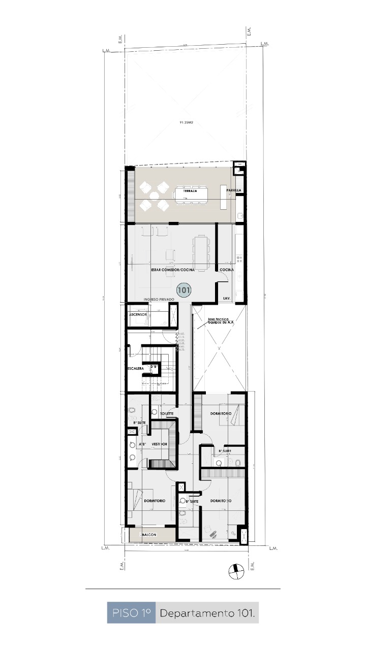
Desarrollados en 6 plantas y un subsuelo distribuidos en la siguiente manera.
- Subsuelo: 7 unidades de garage.
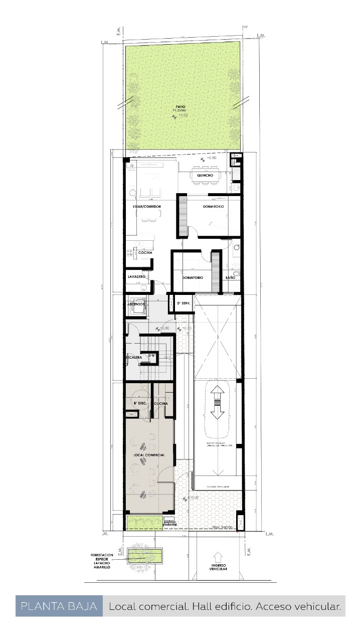
- Planta baja: hall de entrada del edificio, acceso vehicular y local comercial.
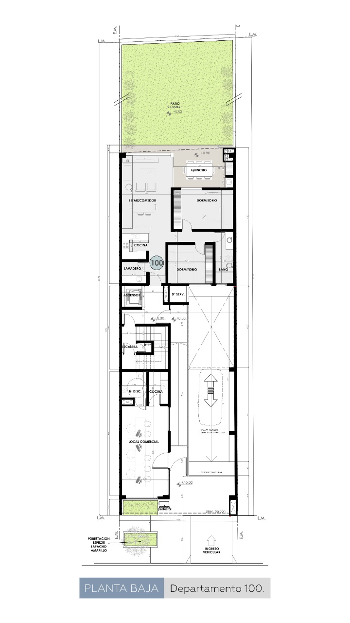
- 1er piso: una unidad funcional de 2 dormitorios. 129,31 m2 propios con patio - 37,22 m2 comunes = 166,53 m2 totales
- Patio con deck
- Quincho con Parrilla
- Lavadero
- Cocina + Living Comedor integrado
- Baño Completo
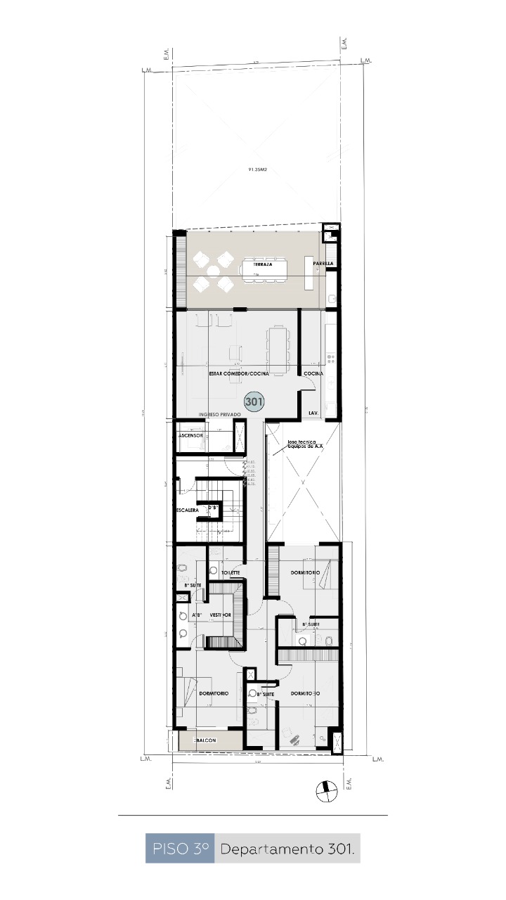
- 2do al 5to piso: una unidad funcional de 3 dormitorios en suite por piso. 5 unidades en total compuestas por 202,22 m2 propios - 58,29 m2 comunes = 260,52 m2 totales
- Living comerdor
- Cocina
- Quincho con parrilla
- 4 baños + 1 toillete
- Lavadero
Caracteristicas:
subsuelo: rampa de acceso y egreso a cocheras.
Planta baja: hall decorado, local comercial y patio.
Terraza con parrillas en todas las unidades habitacionales.
Terminaciones:
Exteriores: revoque monocapa 3 en 1, hormigon visto, latex exterior de primera calidad, barandas de vidrio.
Interiores: revoque proyectado de yeso, latex en manposterias interiores y cielorraso, revestimiento de baños y pisos con porcelanatos de primera calidad.
Caracteristicas
Video
Financiacion
Entrega 30% y 60 cuotas + CAC
Construye
SILVANA RATTI S.A
Estado Actual
Lanzamiento
Finalizacion de Obra
AGOSTO 2023
Dejanos tu consulta
